鹽城市绿巨人视频下载污組合機床有限公司
绿巨人视频免费观看在线播放最新廠家電話 全國谘詢熱線
13770088480
绿巨人视频免费观看在线播放最新廠家
熱門關鍵詞:
產品展示
PRODUCT CATEGORIES
绿巨人视频免费观看在线播放最新 機械滑台 標準雙麵銑 組合機床 進給箱 定流向擺線泵 柱塞泵 蝸輪蝸杆 電磁製動器
聯係绿巨人视频下载污 / Contact
鹽城市绿巨人视频下载污組合機床有限公司
地址:鹽城亭湖區新洋街道新鹽路51號
聯係人:楊經理
手機:13770088480
電話:0515-88631001
傳真:0515-88631002
郵箱:13770088480@139.com
網址:http://www.clml7177771.com
產品展示/  PRODUCTS 當前位置:首頁 >> 產品展示 >> 機械滑台

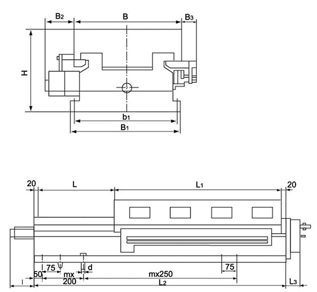
HY係列液壓滑台

[來源:www.clml7177771.com] [機械滑台] [收藏本頁] [打印本頁] [關閉窗口]

HY係列液壓滑台是用以實現進給運動的動力部件,配以各種切削頭及支承部件以組成不同類型的組合機床,用以完成鑽、擴、鉸、锪窩、刮端麵、倒角、車端麵、銑、攻絲等工序。HY係列液壓滑台分A、B丙型。A型雙矩導軌,B型一山一矩組合導軌。

版權所有:鹽城市绿巨人视频下载污組合機床有限公司  2021  網站地圖
聯係人:楊經理 熱線手機:13770088480 電話:0515-88631001 傳真:0515-88631002
地址:鹽城亭湖區新洋街道新鹽路51號